Nieuwbouwvilla’s op maat – Model AURA
- € 376.500
Beschrijving
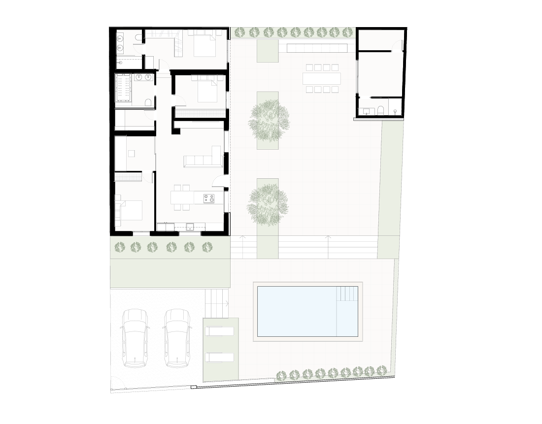
Ontdek een hoogwaardig nieuwbouwconcept waarbij kwaliteit, vrijheid en professionele begeleiding centraal staan. Deze villa’s zijn ontworpen door een ervaren architect en worden gerealiseerd in samenwerking met een vaste bouwpartner, met volledige projectbegeleiding van voorbereiding tot oplevering. De getoonde renders zijn een realistisch voorbeeld van wat mogelijk is. Is dit ontwerp precies wat je zoekt? Dan kan de woning ook exact volgens dit ontwerp worden gebouwd. Wil je wijzigingen in indeling, stijl of afwerking? Dan wordt het ontwerp volledig aangepast aan jouw wensen. Volledige vrijheid in ontwerp Je bent niet gebonden aan een standaardwoning. Samen met de architect kunnen we: het ontwerp 1-op-1 uitvoeren de indeling aanpassen materialen en afwerking wijzigen of een volledig maatwerkontwerp ontwikkelen Zo ontstaat een woning die perfect aansluit bij jouw levensstijl en budget. Prijs & percelen De vermelde prijs is exclusief bouwperceel. Wij beschikken over meerdere bouwpercelen in verschillende regio’s en prijsklassen. Hierdoor kunnen we het ontwerp combineren met een locatie die past bij jouw voorkeuren. Wat is inbegrepen De bouwprijs omvat onder andere: complete bouwvoorbereiding en -begeleiding hoogwaardige constructie en isolatie luxe keuken en badkamers volledige elektrische en sanitaire installaties airconditioning (warm/koud) met zonesysteem privézwembad en buitenafwerking De volledige technische specificatie van wat is inbegrepen, is op aanvraag beschikbaar. Ontzorgd bouwen Het volledige traject wordt professioneel begeleid: ontwerp en technische uitwerking vergunningstraject bouw en kwaliteitscontrole oplevering Je bouwt met duidelijke afspraken, transparantie en één vast aanspreekpunt. Voor wie is dit project geschikt? kopers die geen standaard nieuwbouwwoning willen mensen die waarde hechten aan maatwerk kopers die duidelijkheid en begeleiding zoeken tijdens het bouwproces Meer informatie? Neem contact met ons op voor: beschikbare percelen richtprijzen Technische specificaties of een vrijblijvend gesprek over jouw wensen
Locatie
Contact formulier
Soortgelijke woningen
Instapklare villa met adembenemend uitzicht in Benarrosa Gardens, Alcalalí
- € 499.995
- Beds: 3
- Baths: 2
- 134 m2
- 830 m2
Instapklare villa met dakterras en uitzicht over Cañada del Trigo
- € 329.995
- Beds: 3
- Baths: 2
- 119 m2
- 10004 m2
Instapklare villa met zwembad nabij Pinoso
- € 399.995
- Beds: 4
- Baths: 2
- 210 m2
- 17148 m2
Moderne nieuwbouwwoning model 172
- € 429.000
- Beds: 3
- Baths: 2
- 172 m2
- 10000 m2
Vrijstaande Nieuwbouwwoning – volledig op maat samen te stellen
- € 399.000
- Beds: 3
- Baths: 2
- 160 m2
- 10000 m2
Nieuwbouwvilla’s op maat – Model Eivissa
- € 395.500
- Beds: 3
- Baths: 2
- 180 m2
- 10000 m2









